Морской танк-контейнер CTL-26-1,77В T4
Конструкция цистерны CTL-26-1,77В T4 предназначена для перевозки и временного хранения органических и неорганических, химически агрессивных и не агрессивных жидкостей;
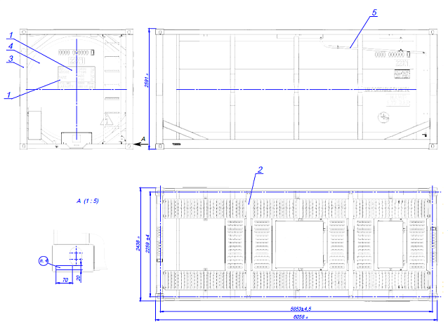
- Номинальная емкость, л
- 26000
- Количество отсеков
- 1
- Общая длина, мм
- 6058
- Высота, мм
- 2591
- Ширина, мм
- 2438
- Общая масса брутто, кг
- 30480
- Грузоподъемность, кг
- 32000
- Масса снаряжённого ТС, кг
- 4400
Морской танк-контейнер CTL-26-1,77В T4
Танк-контейнер T4 CTL-26-1,77В приобрести можно в Чебоксарах, в Москве, в Екатеринбурге, в Ростове на Дону, в УФЕ, в Казани, в Санкт Петербурге, в Нижнем Новгороде и других регионах России и станах СНГ в компании ЗАО «Сеспель». Танк-контейнеры T4 CTL-26-1,77В служат для перевозки серной кислоты и других разнообразных веществ, включая транспортировку:
- Агрессивные жидкости;
- Пищевые жидкости;
- Коррозионные вещества;
- Легковоспламеняющиеся жидкости;
- Прочие опасные вещества.
Танк-контейнер транспортирует подобные грузы авто-, железнодорожным или морским способом. Данное средство для доставки определенного вида багажа представляет собой морской контейнер T4 CTL-26-1,77В, который оснащен каркасом и цистерной, оборудованный сливной арматурой и приспособлениями для разгрузки товара под силой тяжести и давления. Номинальная емкость составляет 26 м3. Общая масса 30480 кг.
Морской контейнер T4 CTL-26-1,77В от ЗАО «Сеспель» удобен в первую очередь для сохранения безопасности транспортируемых грузов. Категория «для специальных грузов» также относится к морским контейнерам.
Выберите одну из стандартных комплектаций
Либо обратитесь к нашим специалистам и подберите комплектацию индивидуально
Консультация инженера
Наши инженеры помогут Вам рассчитать оптимальную нагрузку на дорогу по постановлению Правительства РФ №12 от 01.05.2015 г. под Ваш груз и Ваш тягач для работы без перегруза и штрафов.
Есть индивидуальный проект?
Если у Вас есть индивидуальный проект - заполните опросный лист и пришлите его нам для расчета.
Похожая продукция
Морской танк-контейнер CTL-25-4D T14
