- Бензовозы
- Зерновозы
- Самосвальные полуприцепы
- Цементовозы
- Битумовозы
- Муковозы
- Газовозы
- Пищевые цистерны
- Цистерны для химии
- Прицепы
- Танк-контейнеры
- Контейнер-цистерна C50D44/18RS T50
- Контейнер-цистерна C14L21RS Алюминиевый
- Контейнеровоз DP3039
- Морской танк-контейнер CTL-26-1,77В T4
- Морской танк-контейнер CTL-25-4D T14
- Морской танк-контейнер CTL-25-4 B-01 T11
- Морской танк-контейнер CTL-25/18 T50
- Морской танк-контейнер C11N17 T11
- Морской танк-контейнер CTL-26/0.175 T5
- Подъемные цистерны
- 4х осные полуприцепы
- Автоцистерны
- Криогенные полуприцепы
- Криогенные танк-контейнеры
Главная
>
Каталог
>
Танк-контейнеры
>
Морской танк-контейнер CTL-25-4D T14
>
Морской танк-контейнер CTL-25-4D T14
Морской танк-контейнер CTL-25-4D T14
Морской танк-контейнер CTL-25-4D T14
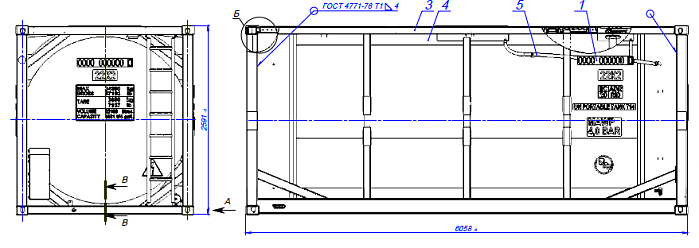
Конструкция цистерны CTL-25-4D T14 предназначена для перевозки и временного хранения органических и неорганических, химически агрессивных и не агрессивных жидкостей. Грузоподъемность 25 м3. Масса снаряжённого ТС 3600 кг.
Морской контейнер CTL-25-4D T14 от ЗАО «Сеспель» удобен в первую очередь для сохранения безопасности транспортируемых грузов. Категория «для специальных грузов» также относится к морским контейнерам.
Технические характеристики
| Математическая модель | CTL-25-4D- 06.025-0001 |
| Номинальная емкость, л | 25100 |
| Общая длина, мм | 6058 |
| Высота, мм | 2591 |
| Ширина, мм | 2438 |
| Общая масса брутто, кг | 30480 |
| Грузоподъемность, кг | 26380 |
| Количество отсеков | 1 |
| Масса снаряжённого ТС, кг | 4200 |
| Материал | Нержавеющая сталь |
|
Подробнее
|
|
Консультация инженера
Наши инженеры помогут Вам рассчитать оптимальную нагрузку на дорогу по постановлению Правительства РФ №12 от 01.05.2015 г. под Ваш груз и Ваш тягач для работы без перегруза и штрафов.
Если у Вас есть индивидуальный проект - заполните опросный лист и пришлите его нам для расчета.
Заполнить опросный лист
